top of page

HARINGEY MEWS

HARINGEY MEWS

HARINGEY MEWS

HARINGEY MEWS

HARINGEY MEWS

HARINGEY MEWS
HARINGEY MEWS
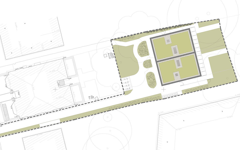
Scheme for mews houses in a conservation area in Haringey, London. A series of modern mews houses in a conservation area on a constrained infill site bounded by residential properties on all sides.
This scheme has gone through a number of changes following on from initial pre-application advice for a series of mews houses on the site. Planning permission was recently granted for three small residential units in the form of a terraced development.
bottom of page